ImmoANT » Immo te koop » Grond te koop Antwerpen » Grond te koop in Lille
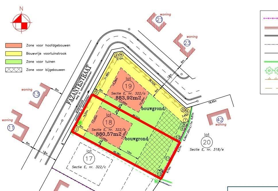
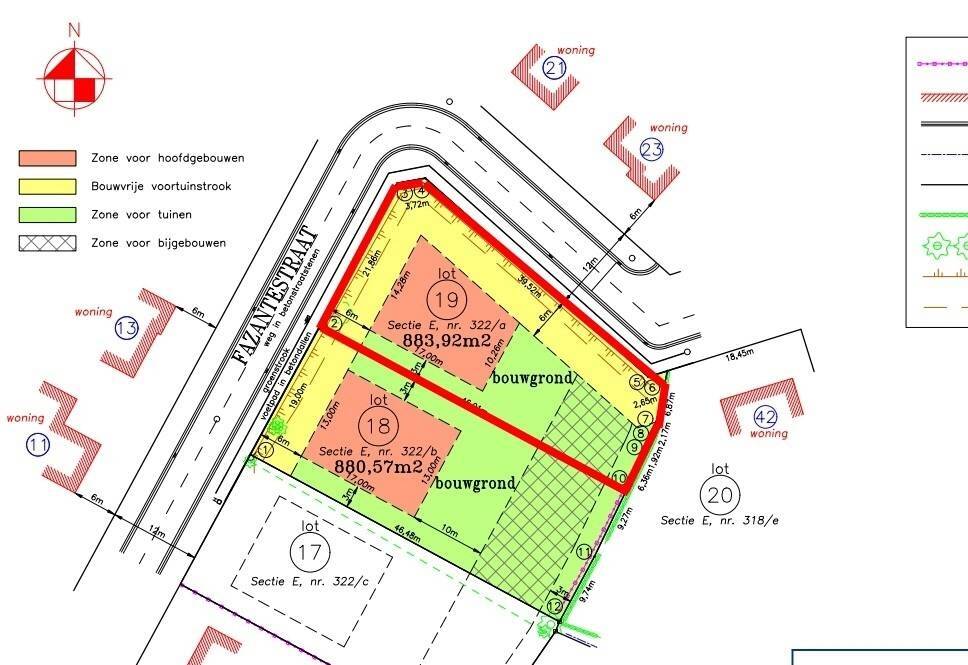
8 gronden te koop in 2275 Lille
Ontvang dagelijks nieuwe advertenties die aan uw zoekcriteria voldoen
De meest recente aankondigingen staan bovenaan de lijst.














Ontvang dagelijks nieuwe advertenties die aan uw zoekcriteria voldoen
Past uw zoekcriteria aan
Heeft u de grond te koop dat u zocht in Lille niet gevonden binnen 8 zoekertjes? U kunt altijd zoeken in de andere gemeentes in de buurt van Lille of de advertenties van vergelijkbare woningen raadplegen.
Soortgelijke panden te koop in 2275 Lille
Gronden te koop in de gemeenten rond Lille
- Grond te koop in Wechelderzande (2)
- Grond te koop in Gierle (2)
- Grond te koop in Vorselaar (10)
- Grond te koop in Herentals (4)
- Grond te koop in Lichtaart (2)
- Grond te koop in Vlimmeren (4)
Kopen of huren? Denk soms de andere kant op
Ontvang dagelijks nieuwe advertenties die aan uw zoekcriteria voldoen